Project Description

Visit our website with a bigger device for more information

ALLROUND INTEGRATED PROCESSING LINE 300 SERIES (4)

​​The AIPL300 series is the best selling series in the range of Allround Integrated Processing Lines. As for all AIPL lines, the 300 series has a great range of possibilities.

Based on the requirements of the customer, Allround VP makes a detailed drawing of the line that would be most suitable in that particular situation.

All AIPL processing lines are easily extendable. In some cases, our customers would like to build their lines in phases, which is perfectly possible with an AIPL 300 line.

Note: Click on the highlighted text to view more.


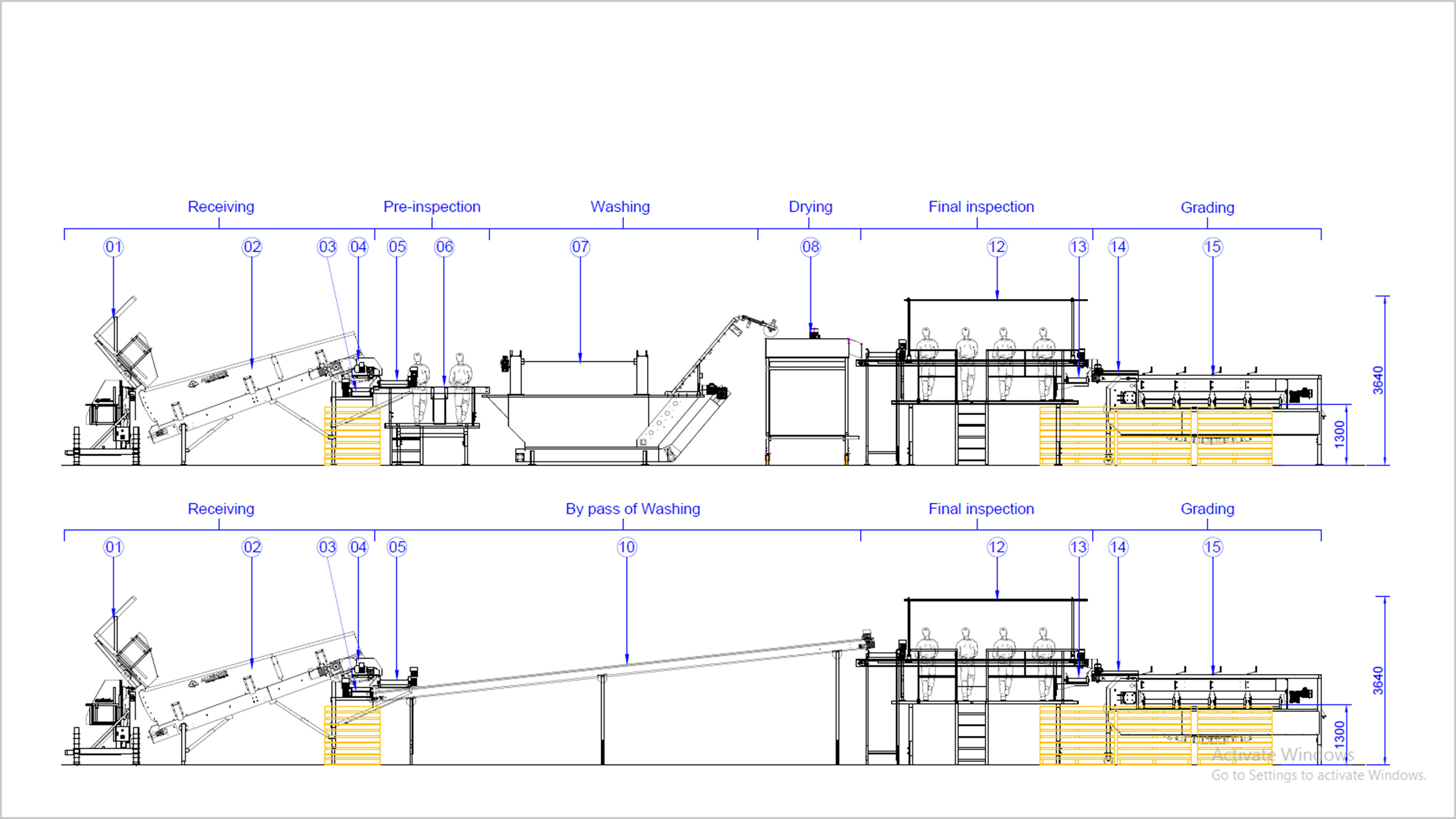
Machine

1.Box tipper
2.Hopper
3.Spiral roller set
4.Waste belt
5.Product belt
6.Inspection belt
7.Washing machine
8.Dryer
9.Bypass belt
10.Transport belt
11.Transport belt
12.Inspection Belt
13.Waste belt
14.Infeed belt
15.Radial grader

Type

Z-160
B 120-450
VS 120-6
TB 300-40
TB 300-60
IB 250-60
UK 300
DR 100-12
TB 225-80
TCC 1100-60
TC 400-60
IB 500-100
TB 250-40
TB 100-100
R 120-70-4